Lokation: Aarhus, Danmark
Samarbejdspartnere: MOE & Broedsgaard
Bygherre: KOM
Status: Færdig
Periode: 2005
Rolle: Landskabsarkitekt & Arkitekt
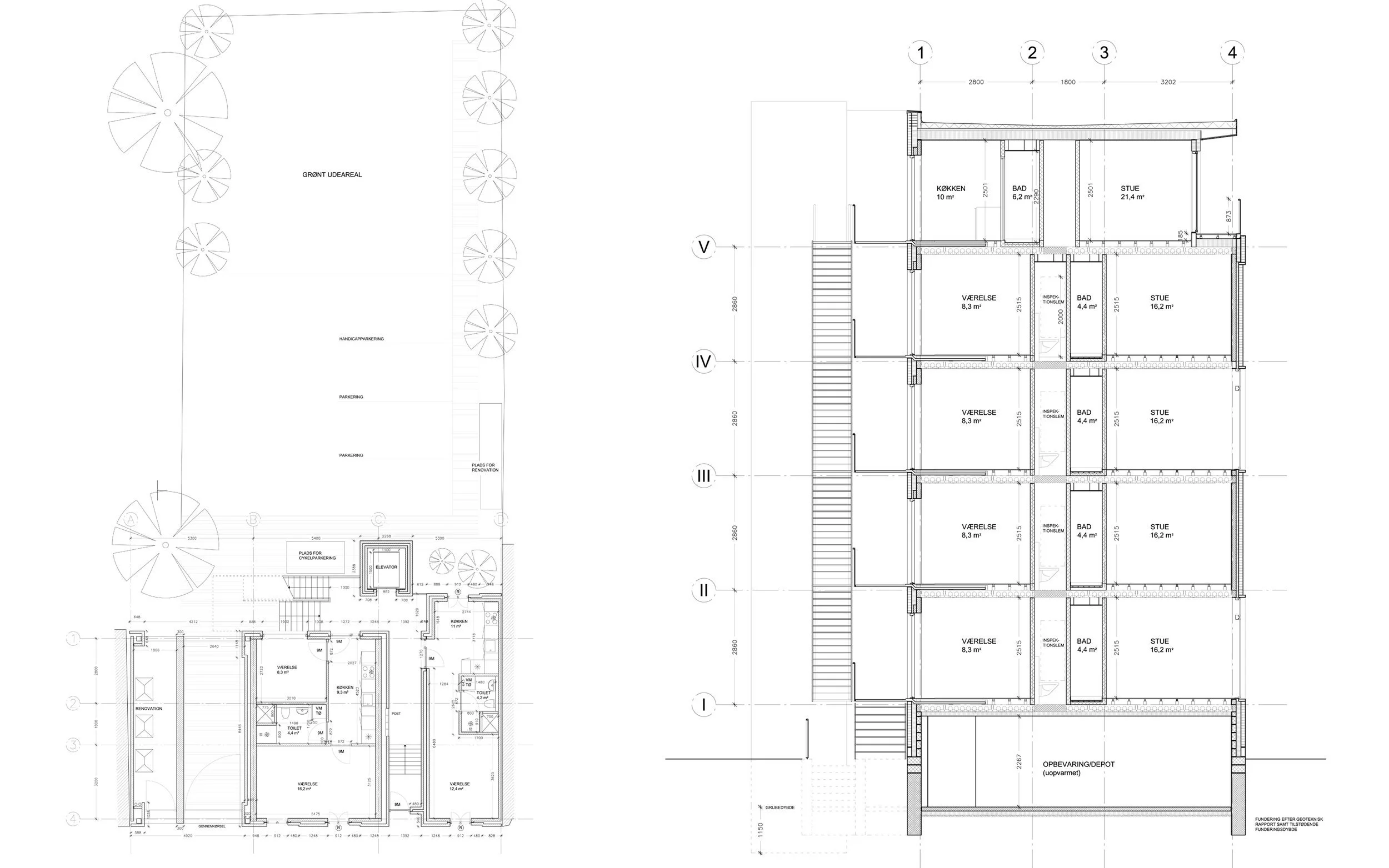
Denne nye lejlighedsbygning består af fire lejlighedsetager samt en penthouse-etage. Endvidere har projektet en færdigudviklet kælderetage med fælles opbevaring og et privat haverum mod syd.
BISSENGADE - AARHUS
Foto: Urbanlab nordic, Arkitektur & Landskabsdesign
Plantegning: Urbanlab nordic, Arkitektur & Landskabsdesign
Illustration: Urbanlab nordic, Arkitektur & Landskabsdesign

